Description
QUEEN C04, 40ft container house, shipping container house, prefab house, tiny house, prefabricated house, buy container house,house for sale
QUEENTNYHOUSE.
About this item
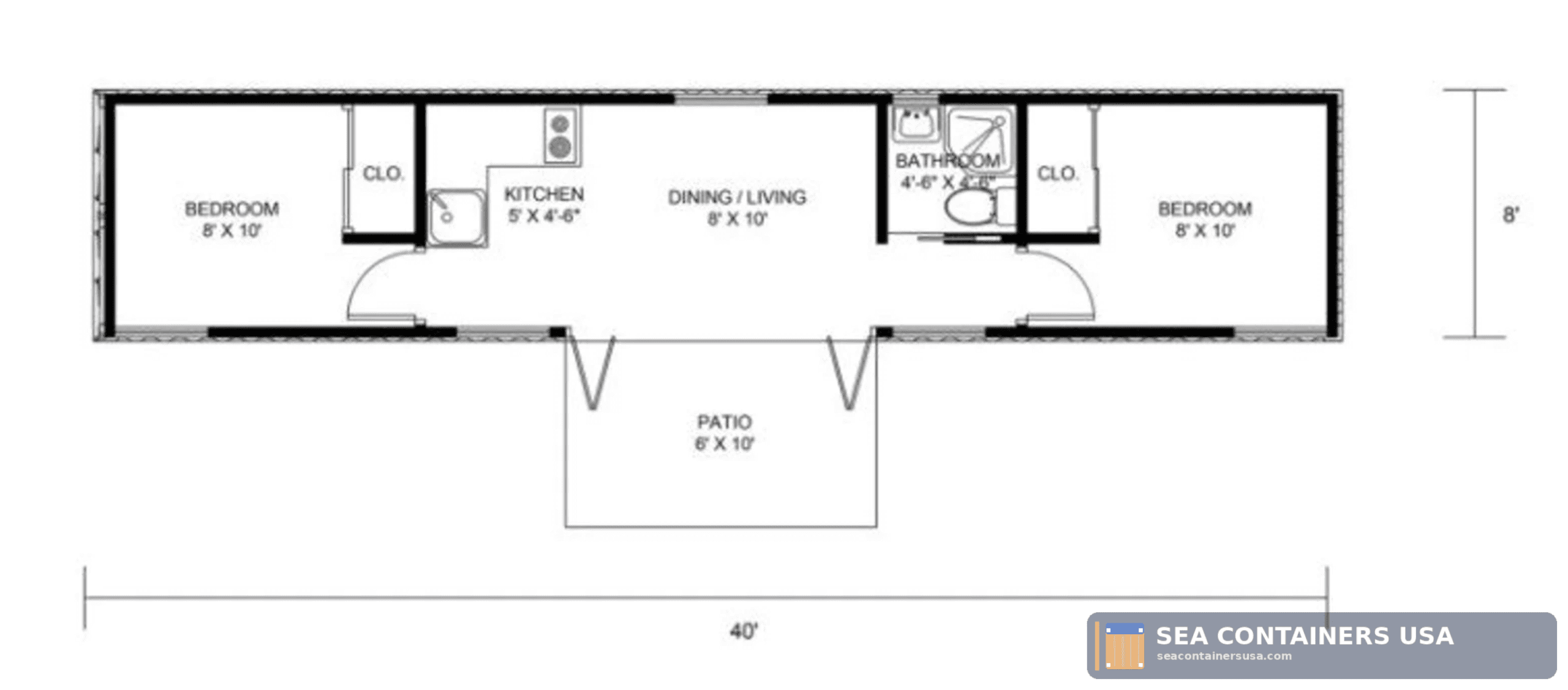
QUEEN C04:
The QUEEN C04 container home is an alternate open space that offers an abundance of room for living. It will open up your possibilities when it comes to your modern, off grid lifestyle. It’s portable, eco-friendly, affordable and above all, it has everything you need! It can be easily adapted to any setting.
40ft Container
Dimensions: Length: 12.1m – Height: 2.9m – Width: 2.4m
27sqm unit
Open living space
Seperate bedroom
Large sliding doors
Triple glazed windows & doors
Full electrical installation
Full plumbing system
5years warranty, ready to be shipped anywhere,
We have discount between 20 % to 30% if you purchase more than 2
manufacturing time is between 2 weeks to 5
Delivery time depends on the location














Reviews
There are no reviews yet.